4 BED SEMI DETACHED

St Peters Avenue, Kettering NN16 0HD

Kettering

Sold

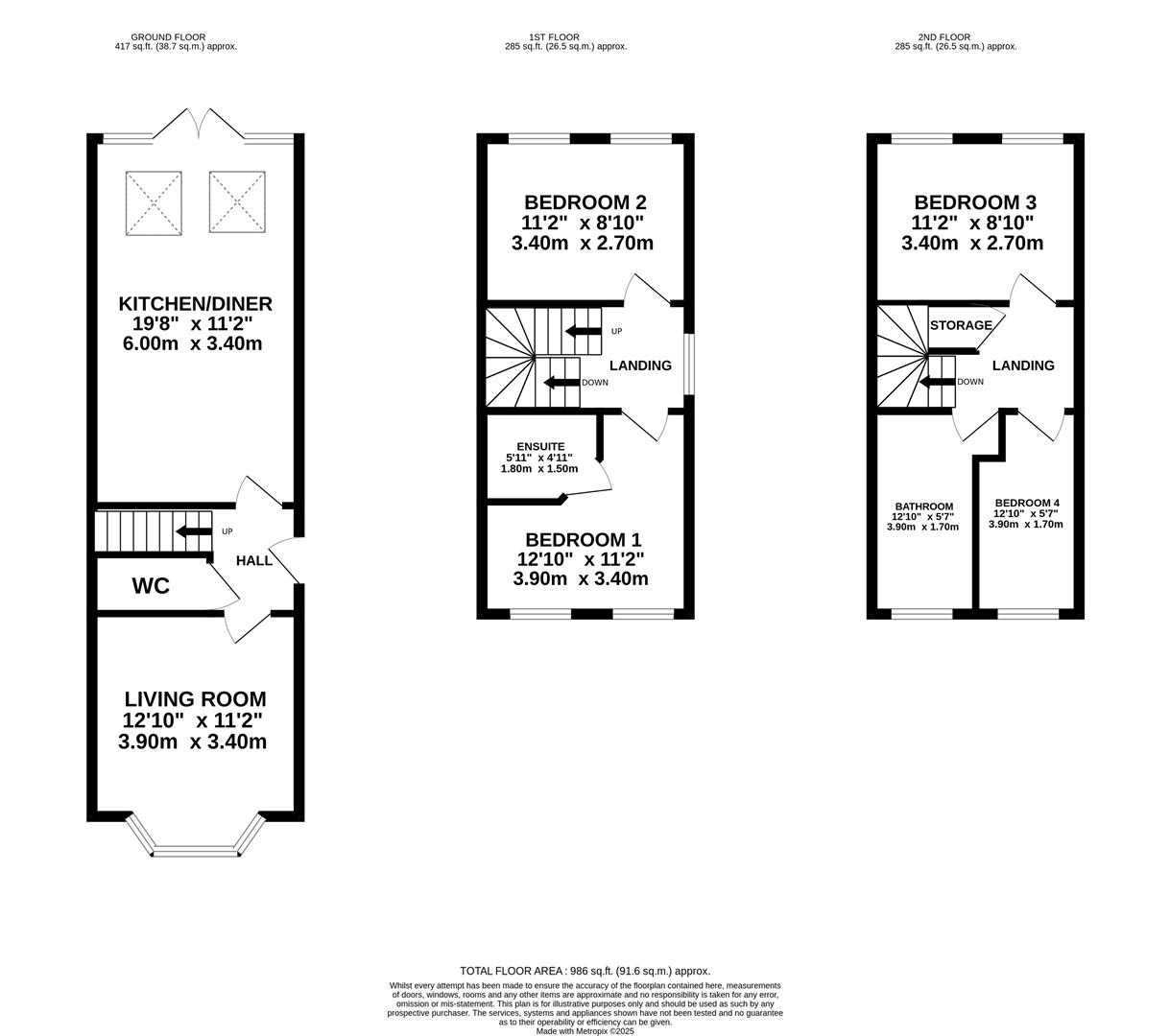
Offered to the market with no onward chain is this spacious four bedroom semi detached property situated within the heart of Kettering amongst a wealth of amenities. The property boasts sizeable accommodation spanning across three floors and offers a kitchen/dining room, bay fronted living room, a guest WC, four bedrooms, an ensuite shower room and a three piece family bathroom. Externally, you will find a rear garden that benefits from lawn and paved patio space and is fully enclosed by timber fencing.

Upon entry you are welcomed into the hallway where all ground floor accommodation is accessible. Located to the front of the property is the large living room that features a bay window allowing plenty of natural light to enter. The kitchen/dining room is definitely the heart of this home with space to incorporate family life within one area. The kitchen itself is fitted with a range of eye and base level units along with an integral oven, hob, extractor, dishwasher and fridge freezer. There is also plenty of room for both living and dining furniture to be housed and double doors opening out to the rear garden. Rising to the first floor landing you are able to access both the master and second bedrooms. The master bedroom benefits from a three piece ensuite shower room adjoining. Bedrooms two and three are double in size whilst the fourth bedroom is a single room that could function as a study or dressing room, if desired. The family bathroom is located on the second floor and boasts a three piece suite including a bath tub with shower over, low level WC and wash hand basin.

Council Tax Band: D
EPC Rating: TBC

Get in touch for a free valuation.


Book a Valuation